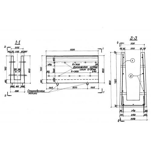
Лотки МШЛ h 0,7 тип I
Характеристики товара
Объём в куб.м.:
0.22
Вес кг.:
600
Длина м.:
1.5
Ширина м.:
0.392
Высота м.:
0.8
Серия Гост:
альб.984
11 859
руб.


