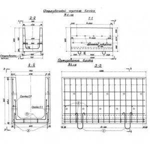
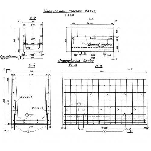
Лотки МПЛ h 0,75 тип II
Характеристики товара
Объём в куб.м.:
0.31
Вес кг.:
800
Длина м.:
1.5
Ширина м.:
0.7
Высота м.:
0.85
Серия Гост:
альб.984
10 188
руб.
Похожие товары
Вы недавно смотрели:


