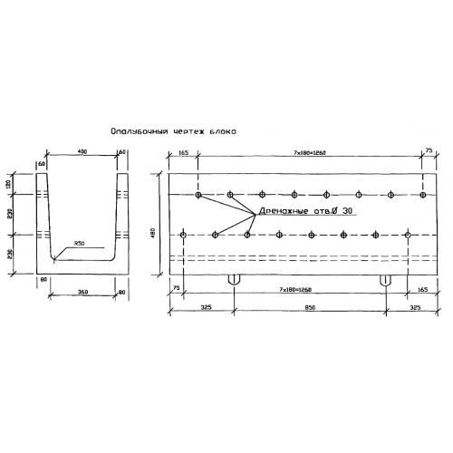
Лоток МЖБЛ h 0.5
Характеристики товара
Объём в куб.м.:
0.17
Вес кг.:
420
Длина м.:
1.5
Ширина м.:
0.52
Высота м.:
0.58
Серия Гост:
альб.ст.реш.
6 948
руб.


