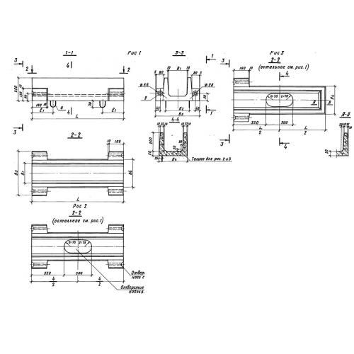
Желоб ЖС-1
Характеристики товара
Объём в куб.м.:
0.05
Вес кг.:
130
Длина м.:
1.0
Ширина м.:
0.46
Высота м.:
0.25
Серия Гост:
3.602.1-1
1 520
руб.
Похожие товары
Вы недавно смотрели:


